Грузоподъемность: 20 тонна
Span: 10 m
Высота подъема: 10 m
Рабочий класс:
Примечание: Мы можем спроектировать и изготовить кран в соответствии с вашими требованиями и условиями работы.
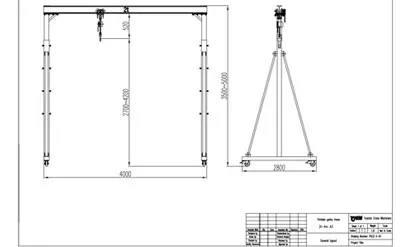
Мобильный козловой кран с ручной цепной талью и ручной тележкой - это гибкое и эффективное грузоподъемное оборудование, которое широко используется на небольших заводах, складах, строительных площадках и в домашнем ремонте.
Максимальная вместимость: 20 т
Максимальная высота: 10 м
Максимальный пролет: 10 м
Тип тали: Ручной цепной блок с тележкой
Передвижение крана: Ручные универсальные колеса
| Пункт | Мобильный козловой кран | |
| Максимальная грузоподъемность | тонна | 20 |
| Максимальная высота | м | 10 |
| Максимальный пролет | 10 | |
| Диаметр цепи | мм | 10.0 |
| Класс работы | / | A3 |
| Класс защиты | / | IP54 |
| Класс изоляции | / | F |
| Общий вес | кг | 1.2 |
| Температура окружающей среды | / | -20℃ ~ +40℃ |
| Структура | ![]() |
Удобная транспортировка и простая установка. Antioxidante |
| Колеса | ![]() |
Ручные колеса для надежной опоры и плавного перемещения. |
| Подъемник | ![]() |
Ручной цепной подъемник с ручной тележкой |
| Цепь | ![]() |
Цепь будет принимать импортную ультра-термообработанную ультра-тяговую цепь из алюминиевого сплава. Она может быть безопасно использована в таких энергетических средах, как дождь, морская вода и химикаты. |

Previous:Узбекский клиент купить мобильный козловой кран 2 тонны 10 метров с таль электрическая цепная
Next: Sorry no more
Пожалуйста, оставьте нам требуемую спецификацию крана для быстрой котировки.