Мостовой кран 3 тонны

Казахстанскии клиент купить мостовой кран 3 тонны 22,5 м 8 м

Казахстанскии клиент купить мостовой кран 3 тонны 22,5 м 8 м Казахстанскии клиент купить мостовой кран 3 тонны 22,5 м 8 м

Грузоподъемность: 3 тонна
Span: 22.5 m
Высота подъема: 8 m
Рабочий класс:
Примечание: Мы можем спроектировать и изготовить кран в соответствии с вашими требованиями и условиями работы.

Получить цену

Email

Купить мостовой кран 3 тонны в Казахстане

В соответствии со специфическими потребностями нашего уважаемого клиента в Казахстане, нам было поручено предоставить комплексное решение для мостовой крановой установки грузоподъемностью 3 тонны. Казахстанскому заказчику требовалось купить не только высококачественный мостовой кран, но и опорную конструкцию, соответствующую его уникальным производственным требованиям.

Требования заказчика к мостовой кран 3 тонны:

Грузоподъемность: 3 тонны
Высота подъема: 8 метров
Пролет: 22,5 метра
Электропитание: 380v 50hz 3p
Рабочее состояние: Внутреннее под навесом

Переговоры и сотрудничество:
На протяжении всего процесса переговоров наша команда провела несколько раундов обсуждений с казахстанским заказчиком, чтобы понять его конкретные потребности, эксплуатационные ограничения и предпочтения. Совместные усилия нашей инженерной группы и заказчика привели к принятию предложенного решения по мостовой кран 3 тонны.
Готовое решение:
Окончательное решение включает в себя надежную подъемную систему грузоподъемностью 3 тонны, идеально подходящую под требования казахстанского заказчика. Высота подъема мостовой кран 3 тонны составила 8 метров, а пролет 22,5 метра обеспечил оптимальный охват в пределах выделенного рабочего пространства. Характеристики электропитания 380v 50hz 3p полностью соответствуют инфраструктуре заказчика, что повышает эффективность работы системы.

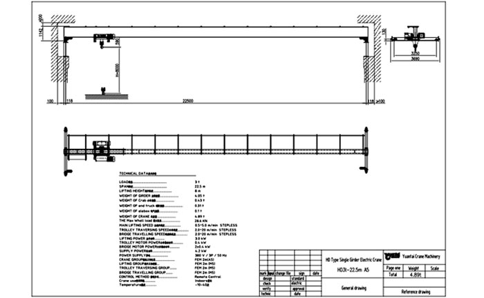
Технические характеристики мостовой кран 3 тонны для продажи:

Артикул Европейский тип Однобалочный мостовой кран
Грузоподъемность т 3
Высота подъема м 8
Пролет м 22.5
Скорость Скорость передвижения крестовины м/мин 2-20
Скорость передвижения крана 2-20
Скорость подъема 0.5-5
Рабочий класс / A5 (FEM 2m)
Электропитание В/Гц/Ч 380/50/3
Мощность поперечного перемещения КВт 0.4
Мощность передвижения крана 2*0.4
Мощность подъема 3
Общая мощность T 4.2
Общий вес KN 4.89
Максимальная нагрузка на колеса / 28.6
Всего колес / 4
Марка электрооборудования / Schneider
Сертификат / CE&ISO
Марка двигателя / марка SZW
Класс защиты / IP54
Класс изоляции / F
Способ управления / Подвесное управление и дистанционное управление

Удовлетворенность заказчика:
После успешной реализации решения по мостовой кран 3 тонны заказчик из Казахстана выразил глубокое удовлетворение результатом. Специально разработанное решение не только оправдало, но и превзошло их ожидания в плане функциональности, долговечности и общей производительности. Совместный подход и стремление предоставить индивидуальное решение способствовали положительному опыту заказчика.

Мы стремимся предоставлять индивидуальные решения по подъему грузов, которые отвечают уникальным потребностям наших клиентов, способствуя развитию долгосрочных партнерских отношений, основанных на доверии и удовлетворенности.

Чертеж конструкции мостовой кран 3 тонны:

3 ton Overhead Crane design drawing

Мостовой кран 3 тонны Обработка:

3 ton Overhead Crane Processing

Установка мостовой кран 3 тонны:

3 ton Overhead Crane Installation
3 ton Overhead Crane Installation

Промышленный рост Казахстана: Решения для мостовой кран 3 тонны:

Выбор мостовой кран 3 тонны в Казахстане имеет решающее значение для поддержки различных отраслей промышленности в условиях промышленного роста страны. Индивидуальные решения для промышленного ландшафта Казахстана включают:

  1. Адаптируемость к различным отраслям промышленности: Выберите крановую систему, подходящую для различных отраслей промышленности Казахстана, таких как нефтегазовая, обрабатывающая, строительная и логистическая.
  2. Устойчивость к коррозии: Учитывая прибрежную среду Казахстана, выбирайте краны из коррозионностойких материалов для обеспечения долговечности.
  3. Жаркий климат: Выбирайте краны, предназначенные для эффективной работы в жарком климате Казахстана, с такими характеристиками, как улучшенные системы охлаждения.
  4. Взрывозащищенные варианты: Для таких отраслей промышленности, как нефтегазовая, приоритет отдавайте мостовой кран с взрывозащищенным исполнением, обеспечивающим безопасность и соответствие требованиям.
  5. Автоматизация и интеграция технологий: Рассмотрите краны с функциями автоматизации или простой интеграцией с современными технологиями для повышения эффективности.
  6. Соответствие местным стандартам: Убедитесь, что выбранный кран соответствует казахстанским стандартам, включая электротехнические нормы и нормы безопасности.
  7. Защита от пыли и песка: Выбирайте краны с функциями защиты от пыли и песка в условиях пустыни.
  8. Удаленный мониторинг и диагностика: Выбирайте краны с возможностями удаленного мониторинга и диагностики для упреждающего обслуживания и сокращения времени простоя.
  9. Возможности настройки: Ищите производителей, предоставляющих возможность настройки крана под конкретные нужды отрасли.

Учитывая эти факторы, вы сможете выбрать мостовой кран грузоподъемностью 3 тонны, который будет соответствовать промышленному росту Казахстана и его уникальным экологическим и эксплуатационным проблемам.

Анализ затрат: цены на продажу мостовой кран 3 тонны в Казахстане:

Анализ затрат на мостовой кран 3 тонны цены в Казахстане включает в себя рассмотрение различных факторов, влияющих на общие расходы. Вот обзор ключевых элементов, которые необходимо включить в анализ затрат:
  • Тип крана: Различные типы мостовой кран (однобалочные, двухбалочные) имеют разную стоимость. Выберите тип, который лучше всего подходит для вашей задачи и бюджета.
  • Технические характеристики и особенности: Специфические характеристики, такие как автоматизация, взрывозащищенность и интеграция передовых технологий, могут повлиять на общую стоимость. Оцените функции, необходимые для вашей работы.
  • Пролет и высота подъема: Более длинные пролеты и большая высота подъема могут привести к увеличению стоимости. Убедитесь, что технические характеристики крана соответствуют планировке вашего объекта и требованиям к подъему.
  • Условия окружающей среды: Если ваша деятельность связана с агрессивной или сложной средой, крану могут потребоваться дополнительные защитные элементы, что повлияет на стоимость.
  • Энергоэффективность и эксплуатационные расходы: Энергоэффективные функции могут иметь более высокую первоначальную стоимость, но в долгосрочной перспективе могут привести к экономии эксплуатационных расходов. Учитывайте потребление энергии краном и связанные с этим расходы.
  • Персонализация и специальные требования: Доработка под конкретные нужды отрасли или специальные требования может повлечь за собой дополнительные расходы. Четко определите свои потребности в настройке и составьте соответствующий бюджет.
Проанализировав эти факторы, вы сможете получить полное представление о ценах на мостовой кран 3 тонны в Казахстане и принять обоснованное решение, соответствующее вашему бюджету и операционным требованиям.

Повышение эффективности: Особенности мостовой кран 3 тонны для Казахстана

Повышение эффективности мостовой кран 3 тонны для Казахстана включает в себя выбор характеристик, которые оптимизируют производительность и отвечают конкретным потребностям промышленного ландшафта. Рассмотрим следующие особенности для повышения эффективности:

  • Частотно-регулируемые приводы: Позволяют осуществлять точное управление, снижая потребление энергии и износ компонентов.
  • Автоматизация и дистанционное управление: Повышают производительность за счет минимизации ручного управления.
  • Мониторинг нагрузки и отображение веса: Информация о нагрузке в режиме реального времени для безопасного и эффективного подъема.
  • Высокая скорость подъема и перемещения: Ускоряет рабочий процесс и сокращает время цикла.
  • Контроль против раскачивания: Минимизирует раскачивание груза, повышая точность.
  • Энергоэффективная конструкция: Такие функции, как рекуперативное торможение, экономят энергию и затраты.
  • Интеллектуальный мониторинг и диагностика: Диагностика в режиме реального времени для прогнозируемого технического обслуживания и сокращения времени простоя.
  • Быстрое и точное позиционирование: Обеспечивает быстрое и точное позиционирование груза.
  • Долговечные и малообслуживаемые компоненты: Компоненты, рассчитанные на долговечность и низкую стоимость обслуживания, снижают эксплуатационные расходы.
  • Возможности персонализации: Настройте кран под конкретные нужды для оптимизации производительности.
  • Аварийная остановка и функции безопасности: Функции безопасности быстрого реагирования минимизируют риски.

Учитывая эти особенности при выборе мостовой кран 3 тонны для Казахстана, вы сможете повысить эффективность, улучшить безопасность и оптимизировать процессы обработки материалов в соответствии с особыми требованиями промышленного роста региона.

Выбор подходящего мостовой кран 3 тонны в Казахстане:

Выбор правильного мостовой кран 3 тонны в Казахстане включает в себя рассмотрение нескольких факторов, чтобы убедиться, что он отвечает вашим конкретным потребностям и работает эффективно и безопасно. Вот исчерпывающее руководство, которое поможет вам принять обоснованное решение:

  • Определите весовую нагрузку: Определите максимальный вес, который должен поднимать кран.
  • Измерьте пролет и высоту подъема: Измерьте расстояние, которое кран должен преодолеть по горизонтали и вертикали.
  • Проверьте частоту использования: Определите, как часто вы будете использовать кран, и выберите подходящий рабочий цикл.
  • Оцените требования к скорости: Учитывайте требуемые скорости для подъема и перемещения груза.
  • Учитывайте факторы окружающей среды: Если вы работаете в сложных условиях, выбирайте такие характеристики, как устойчивость к коррозии.
  • Приоритетные функции безопасности: Убедитесь, что кран оснащен средствами безопасности и соответствует международным стандартам.
  • Определите бюджет: Определите свой бюджет, включая расходы на установку.
  • Проверьте условия гарантии и обслуживания: Ознакомьтесь с условиями гарантии и доступными вариантами обслуживания.
  • Оцените возможности настройки: Уточните, допускает ли производитель доработку под ваши конкретные нужды.

Тщательно изучив эти факторы, вы сможете выбрать подходящий мостовой кран 3 тонны для ваших операций в Казахстане, обеспечив оптимальную производительность, безопасность и экономическую эффективность.

Получить бесплатную цитату

Пожалуйста, оставьте нам требуемую спецификацию крана для быстрой котировки.

Связаться с
Чат
Whatsapp
Email
720 VR
Отправьте заявкуx

Пожалуйста, оставьте нам требуемую спецификацию крана для быстрой котировки.





Чат в Whatsappx

Whatsapp: +86-15225185279

Top