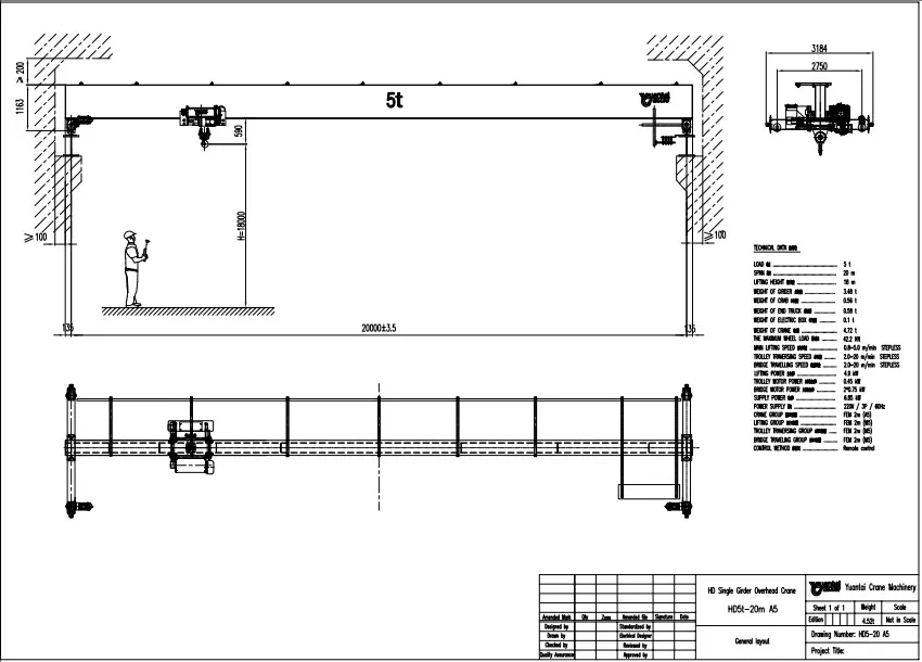
Грузоподъемность: 5 тонна
Span: 20 m
Высота подъема: 18 m
Рабочий класс: A5
Примечание: Мы можем спроектировать и изготовить кран в соответствии с вашими требованиями и условиями работы.
| Номер | Мостовой кран европейского типа | |
| Грузоподъемность | т | 5 |
| Высота подъема | м | 18 |
| Пролет | м | 20 |
| Скорость передвижения тали | м/мин | 2-20 (частотно-преобразовательное управление) |
| Скорость передвижения крана | 2-20 (частотно-преобразовательное управление) | |
| Скорость подъема | 0,8-5,0 (частотное управление) | |
| Рабочая классификация | / | FEM 2M (ISO A5) |
| Электропитание | В/Гц/Фаза | 220/60/3 |
| Мощность передвижения тали | кВт | 0.45 |
| Мощность передвижения крана | 0.75*2 | |
| Мощность подъема | 4.9 | |
| Общая мощность | 6.85 | |
| Макс. нагрузка на колеса | KN | 42.2 |
| Общий вес тонны | ton | 4.52 |
| Класс защиты | / | IP54 |
| Класс изоляции | / | F |
| Страна происхождения | / | Китай |
| Рекомендуемый рельс | / | P22 |
| Основная структура | ![]() |
Главная балка | Сварная балка коробчатого сечения, в основном используется материал Q235B прочная углеродистая конструкционная сталь, простая в обслуживании. Трехслойная покраска. |
| Подъемный механизм | ![]() |
Электрическая таль (европейский тип) | Частотно-регулируемая скорость. Редукторы, барабанные моторы, двигатели Степень повреждения F Класс защиты IP54 |
![]() |
Барабан | Самостоятельное производство. Барабаны изготовлены из высококачественной бесшовной стали, обработанной на станке с ЧПУ. |
|
![]() |
Канат | Канатная конструкция 8 × 26SW, стальной сердечник. | |
![]() |
Направляющая каната | Высокопрочный нейлоновый материал, устанавливается на намоточный барабан для направления троса, Избегайте постоянного наматывания стальной проволоки и продлевайте срок службы барабана. |
|
![]() |
Крюк | Поворот на упорном подшипнике, предохранительная защелка. | |
![]() |
Редуктор для подъема тали | Планетарный редуктор барабанной точности Легкий и компактный. Хорошая герметичность, отсутствие утечки масла. |
|
| Двигатели | ![]() |
Двигатель передвижения крана | Не требует обслуживания. Класс изоляции F. Класс защиты IP54. Электромагнитная тормозная система дискового типа. |
![]() |
Двигатель подъема тали | Двигатель подъема с частотным преобразованием. Класс защиты IP54. |
|
![]() |
Концевые каретки (оголовки) | Q235B квадратные полые из углеродистой стали, обеспечивает горизонтальное перемещение крана с двигателями. |
|
![]() |
Колеса | Устанавливаются на концевые каретки крана в качестве ведущих колес, Материал - высокоуглеродистая сталь. Вакуумное литье нашей группы, Промежуточное охлаждение с помощью высокотехнологичного оборудования, антикоррозийная покраска. |
|
| Электрики | ![]() |
Электрический шкаф и контакторы | Бренд CHINT, лучший китайский бренд, ABB Контакторы класса защиты IP54 |
![]() |
Фестонный кабель | Источник питания для тележки, кабельная дорожка типа C, безопасный и надёжный |
|
![]() |
Дистанционное управление | Безопасно и надежно. | |
![]() |
Частотный преобразователь | Бренд Inovance, китайский известный бренд. Управление двигателем подъема и перемещения, изменение скорости вращения двигателя. |
|
![]() |
Авиационная вилка | Простота подключения и установки | |
| Система защиты | ![]() |
Концевые выключатели подъема | Для защиты при подъеме, предотвращают удар крюка о лебедку |
![]() |
Концевые выключатели | При длительном перемещении защитите подъемник до того, как он врежется в объект | |
![]() |
Автоматический регистратор слежения | Отображает вес груза и регистрирует время работы крана. Регистрирует время перегрузки крана, обеспечивает защиту и сигнализацию. Регистрация времени запуска двигателя подъемника. Обеспечивает сигнализацию и защиту от перегрева двигателя подъемника. |
|
![]() |
Буфер | Плауретановый материал, используемый для защиты от столкновений. |


Пожалуйста, оставьте нам требуемую спецификацию крана для быстрой котировки.