Lifting Capacity: 5 ton
Span: 7.5-28.5 m
Lifting Height: 6/9/12/18 m
Working Class: A3, A4
Note: We can design and manufacture the crane according your requirments and working conditions.
5 ton overhead crane for sale is a type of crane that is designed to lift and move materials weighing up to 5 tons. 5 ton overhead crane is commonly used in various industrial settings such as factories, workshops, and warehouses where there is a need to handle materials with low lifting capacity.
This type of 5 ton overhead crane for sale is known for its compact structure, modern appearance, and high-quality craftsmanship, which ensures a long service life. 5 ton overhead crane has a large load capacity and can handle heavy workloads with ease.
Moreover, the 5 ton overhead crane is known for its stable and flexible operation, making it safe and reliable to use. 5 ton overhead crane has a wide range of applications and offers a high performance-to-price ratio, making it an excellent investment for businesses that require material handling solutions.
Our Pakistani customer is looking for high quality manufactured 5 ton bridge crane for his upcoming project. After getting to know our lifting equipment, our Pakistani customers felt that our brand was right for them. Our Pakistani customers are interested in purchasing 5 ton overhead crane from our company.
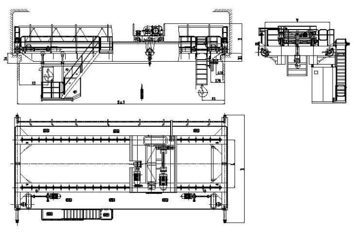
| Electric Overhead Crane Lifting Capacity | t | 5t | |||||||
| Span (S) | m | 10.5 | 13.5 | 16.5 | 19.5 | 22.5 | 25.5 | 28.5 | 31.5 |
| Lifting speed | m/min | 12.5(A5)、15.5(A6) | |||||||
| Trolley speed | m/min | 37.2 | |||||||
| Crane speed | m/min | 90.7(A5)、115.6(A6) | 91.9(A5)、116.8(A6) | ||||||
| Lifting motor | kw | 13(A5)、15(A6) | |||||||
| Trolley motor | kw | 1.8 | |||||||
| Overall weight(A5) | kg | 11830 | 13670 | 15565 | 18200 | 20650 | 25040 | 28130 | 31080 |
| Overall weight(A6) | kg | 12130 | 13980 | 15860 | 18500 | 20950 | 25240 | 28330 | 31280 |
| Max. wheel load(A5) | KN | 72 | 78 | 84 | 92 | 97 | 109 | 117 | 125 |
| Max. wheel load(A6) | KN | 73 | 79 | 85 | 93 | 98 | 110 | 118 | 125 |
| Rail recommended | P43 | ||||||||
| Main dimension | mm | 10.5 | 13.5 | 16.5 | 19.5 | 22.5 | 25.5 | 28.5 | 31.5 |
| Wheel tread to trolley top | H | 1763 | 1763 | 1763 | 1763 | 1763 | 1763 | 1763 | 1763 |
| Wheel tread to main girder bottom | H2 | -24 | 126 | 226 | 376 | 526 | 676 | 826 | 976 |
| Wheel tread to hook center | H4 | 71 | 71 | 71 | 71 | 71 | 71 | 71 | 71 |
| End beam wheel's distance | W | 3400 | 3400 | 3550 | 3550 | 3550 | 5000 | 5000 | 5000 |
| End beam length | B | 5054 | 5054 | 5204 | 5204 | 5204 | 5948 | 5948 | 5948 |
| Trolley wheels' distance | L | 1400 | |||||||
| Hook left limitation | S2 | 800 | |||||||
| Hook right limitation | S3 | 1250 | |||||||

Our company Dongqi Crane to offer high-quality 5 ton overhead cranes are manufactured using only the highest quality materials and components, ensuring that it is durable and long-lasting. and designed to meet the specific needs of our customers. We have a long-standing reputation for excellence in the industry, and we are thrilled that our Pakistani customer has chosen us for their upcoming project.
Our team of experts will work closely with the customer to understand their specific requirements and provide customized solutions that meet their needs.
The 5 ton overhead crane price can vary widely depending on various factors, including the crane type, features, customization, manufacturer, geographic location, and market conditions. Here's a general approximate range of 5 ton overhead crane price:
Keep in mind that this is a broad estimate, and the actual cost can be higher or lower based on your specific requirements. Customization, additional features, advanced technology and ongoing maintenance can significantly affect the final price. To get an accurate quote for a 5 ton overhead crane, it's advisable to contact crane manufacturers or suppliers directly with your project's details and specifications. They can provide a precise cost based on your specific needs and location.
Please leave us the required Crane specification for Quick Quotation.