5 Ton Overhead Crane

5 Ton 3.75M H-9M LHB type Double Girder Overhead Crane with Explosion-proof Electric Wire Rope Hoist for Sale to Yemen

5 Ton 3.75M H-9M LHB type Double Girder Overhead Crane with Explosion-proof Electric Wire Rope Hoist for Sale to Yemen 5 Ton 3.75M H-9M LHB type Double Girder Overhead Crane with Explosion-proof Electric Wire Rope Hoist for Sale to Yemen 5 Ton 3.75M H-9M LHB type Double Girder Overhead Crane with Explosion-proof Electric Wire Rope Hoist for Sale to Yemen 5 Ton 3.75M H-9M LHB type Double Girder Overhead Crane with Explosion-proof Electric Wire Rope Hoist for Sale to Yemen 5 Ton 3.75M H-9M LHB type Double Girder Overhead Crane with Explosion-proof Electric Wire Rope Hoist for Sale to Yemen 5 Ton 3.75M H-9M LHB type Double Girder Overhead Crane with Explosion-proof Electric Wire Rope Hoist for Sale to Yemen 5 Ton 3.75M H-9M LHB type Double Girder Overhead Crane with Explosion-proof Electric Wire Rope Hoist for Sale to Yemen

Lifting Capacity: 5 ton
Span: 3.75 m
Lifting Height: 9 m
Working Class:
Note: We can design and manufacture the crane according your requirments and working conditions.

Get Price

Send Email

5 Ton 3.75M H-9M LHB type Double Girder Overhead Crane with Explosion-proof Electric Wire Rope Hoist for Sale to Yemen:

A chemical storage and processing company in **Yemen** approached us with a very specific requirement. Their facility handles flammable solvents used in cleaning and light industrial production, and they were upgrading internal handling equipment to meet stricter safety standards. The existing lifting method relied on manual hoists and non-rated equipment, which posed clear risks in an environment with combustible vapors.

After several rounds of technical discussion, the client selected a **5 ton explosion-proof double girder overhead crane** designed for hazardous conditions.
  • Type: LHB
  • Lifting Capacity: 5 Ton
  • Lifting Height: 9M
  • Span: 3.75M
  • Power Supply: 380V50HZ3P
  • Full vehicle frequency conversion

### Understanding the Customer’s Operating Environment

Unlike standard workshops, this project in **Yemen** involved a confined production bay with a narrow span of 3.75 meters and relatively high lifting requirements. The workflow required:

* Lifting sealed chemical containers from ground level
* Transferring them to elevated mixing or storage platforms
* Positioning equipment precisely in restricted spaces

In this scenario, stability and safety were far more critical than speed. A compact yet robust **5 ton explosion-proof overhead crane** allowed the client to operate safely within limited space while maintaining lifting precision.

### Configuration Matching Process Requirements

The LHB double girder structure was selected to maximize hook height within the limited span. With a lifting height of 9 meters, the **5 ton explosion-proof double girder overhead crane** ensured full vertical coverage for stacked containers and elevated tanks.

The explosion-proof electric wire rope hoist was a key component. It was configured to meet hazardous area requirements, reducing the risk of sparks during operation. Additionally, the full vehicle frequency conversion system enabled smooth acceleration and deceleration, which is essential when handling liquid-filled containers to prevent load swing.

In practice, the **5 ton explosion-proof overhead crane** improved both safety and handling accuracy in the **Yemen** facility.

### Technical Advantages in Hazardous Applications

For industrial environments like those found in **Yemen**, safety compliance is often the primary concern. This crane offered several important advantages:

* Explosion-proof design across motors, controls, and electrical systems
* Smooth variable frequency operation for precise load control
* Compact double girder structure to optimize lifting height
* Stable operation in confined indoor environments

Another benefit of the **5 ton explosion-proof overhead crane** is its reliability under continuous but controlled usage. The system was designed to minimize maintenance complexity while maintaining high safety standards.

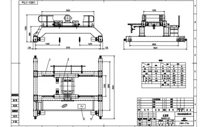
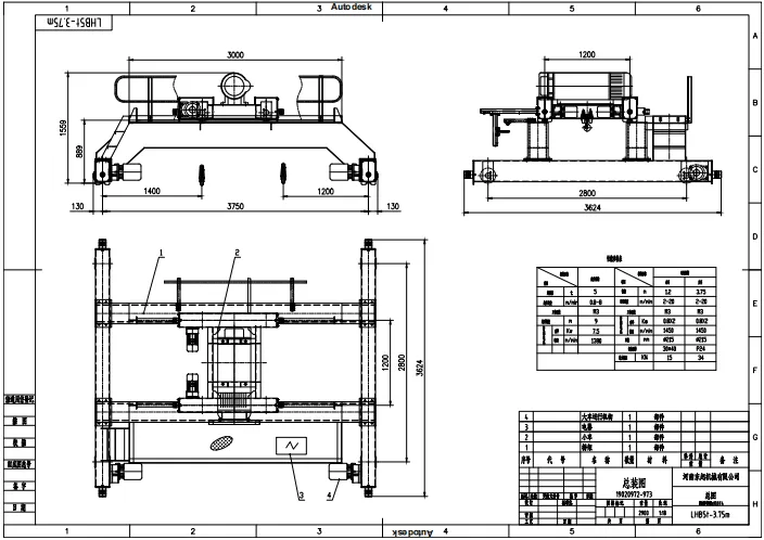
Drawing of 5 ton explosion-proof double girder overhead crane:

Drawing of 5 ton explosion-proof double girder overhead crane

Production process of 5 ton explosion-proof double girder overhead crane:

Production process of 5 ton explosion-proof double girder overhead crane
Production process of 5 ton explosion-proof double girder overhead crane
Production process of 5 ton explosion-proof double girder overhead crane
Production process of 5 ton explosion-proof double girder overhead crane
Production process of 5 ton explosion-proof double girder overhead crane
Production process of 5 ton explosion-proof double girder overhead crane
Production process of 5 ton explosion-proof double girder overhead crane
Production process of 5 ton explosion-proof double girder overhead crane
Production process of 5 ton explosion-proof double girder overhead crane
Production process of 5 ton explosion-proof double girder overhead crane
Production process of 5 ton explosion-proof double girder overhead crane
Production process of 5 ton explosion-proof double girder overhead crane

## 1. How to Choose a 5-Ton Explosion-Proof Double Girder Overhead Crane for Chemical Facilities in Yemen

Selecting a **5-ton explosion-proof double girder overhead crane** in Yemen requires careful alignment with real operating risks rather than just standard specifications. Many chemical and fuel-related facilities work with flammable liquids stored in drums or tanks, where even minor ignition sources can create serious hazards. In this context, the role of a **5-ton explosion-proof overhead crane** is not only to lift loads, but to ensure safe, controlled movement in sensitive environments.

In practice, these facilities often operate in relatively compact buildings with vertical storage layouts. The double girder design allows better hook height, which is essential when lifting containers to elevated platforms. A **5-ton explosion-proof double girder overhead crane** also provides improved stability, reducing load sway when handling liquid-filled vessels.

Another key factor in Yemen is the variability of power supply. Many operators prefer systems with frequency conversion, as this enables smoother motion and reduces mechanical stress during operation. A well-configured **5-ton explosion-proof overhead crane** can continue to perform reliably even under less stable electrical conditions.

Ultimately, the right selection depends on matching the crane to actual workflow, not just theoretical capacity. In industrial context, a properly chosen **explosion-proof overhead crane** significantly improves both safety and operational consistency.

---

## 2. Why Is a 5-Ton Explosion-Proof Double Girder Overhead Crane Critical for Fuel Storage Operations in Yemen?

Fuel storage and handling are essential activities in Yemen, where energy distribution relies heavily on localized storage facilities. These environments require strict safety measures, making a **5-ton explosion-proof double girder overhead crane** a key piece of equipment.

In a typical fuel depot, operators frequently move sealed containers, valves, and maintenance components. Without proper lifting systems, these tasks can become both inefficient and dangerous. A **5-ton explosion-proof overhead crane** provides controlled lifting, reducing the risk of sparks or sudden load movement.

One practical advantage is precision. When positioning equipment near tanks or pipelines, accuracy is critical. The **5-ton explosion-proof double girder overhead crane** offers stable motion, allowing operators to place loads exactly where needed without unnecessary adjustments.

Where operational resources can be limited, reliability is equally important. Equipment must function consistently with minimal downtime. The relatively robust design of a **5-ton explosion-proof overhead crane** ensures it can handle daily operations without frequent intervention.

As safety awareness increases across Yemen’s energy sector, the adoption of a **explosion-proof double girder overhead crane** is becoming a practical step toward safer and more efficient fuel handling.

---
Packaging and Transportation of 5 ton explosion-proof double girder overhead crane:
Packaging and Transportation of 5 ton explosion-proof double girder overhead crane
Packaging and Transportation of 5 ton explosion-proof double girder overhead crane
Packaging and Transportation of 5 ton explosion-proof double girder overhead crane
Packaging and Transportation of 5 ton explosion-proof double girder overhead crane
Packaging and Transportation of 5 ton explosion-proof double girder overhead crane
Packaging and Transportation of 5 ton explosion-proof double girder overhead crane

## 3. What Are the Key Design Considerations for a 5-Ton Explosion-Proof Double Girder Overhead Crane in Yemen?

Designing a **5-ton explosion-proof double girder overhead crane** for use in Yemen involves adapting to both environmental and operational constraints. Unlike controlled indoor environments in more developed regions, facilities often face challenges such as dust, heat, and limited maintenance infrastructure.

One of the main considerations is structural efficiency. The double girder configuration allows the **5-ton explosion-proof overhead crane** to achieve higher lifting height within restricted spaces, which is important for vertical storage systems. At the same time, the structure must remain stable under continuous use.

Electrical safety is another critical aspect. Explosion-proof components must be properly sealed to prevent ignition risks. A well-designed **5-ton explosion-proof overhead crane** ensures that all electrical systems meet safety requirements while remaining accessible for maintenance.

Control systems also play a role. Smooth acceleration and deceleration help prevent load swing, which is especially important when handling liquids. In Yemen, where operator experience levels may vary, a **explosion-proof double girder overhead crane** with intuitive controls can improve both safety and efficiency.

Overall, successful design comes from balancing performance with practicality, ensuring the crane operates reliably under local conditions.

---

## 4. How Does a 5-Ton Explosion-Proof Double Girder Overhead Crane Improve Workflow in Yemen’s Industrial Workshops?

In many industrial workshops across Yemen, material handling is still partially manual or relies on outdated equipment. This often leads to inefficiencies and increased safety risks. Introducing a **5-ton explosion-proof double girder overhead crane** can significantly improve workflow, especially in environments dealing with hazardous materials.

In a typical workflow, materials are received, processed, and then transferred to storage or dispatch areas. A **5-ton explosion-proof overhead crane** enables smooth transitions between these stages, reducing delays caused by manual handling.

Another benefit is space utilization. Workshops in Yemen often operate within limited floor areas. By using overhead lifting, the **5-ton explosion-proof overhead crane** frees up ground space, allowing better organization of equipment and materials.

The crane also enhances consistency. Instead of relying on multiple workers for lifting tasks, a single operator can handle loads efficiently. This not only improves productivity but also reduces the likelihood of accidents.

In practice, adopting a explosion-proof double girder overhead crane** transforms daily operations from reactive and labor-intensive processes into more structured and predictable workflows.

---

## 5. What Maintenance Strategies Extend the Life of a 5-Ton Explosion-Proof Double Girder Overhead Crane in Yemen?

Maintaining a **5-ton explosion-proof double girder overhead crane** in Yemen requires a practical approach that accounts for local conditions. Access to specialized spare parts and technical support may not always be immediate, so preventive maintenance becomes essential.

Routine checks should focus on critical components such as wire ropes, brakes, and electrical systems. Because the **5-ton explosion-proof overhead crane** operates in hazardous environments, ensuring the integrity of explosion-proof features is particularly important.

Environmental factors also play a role. Dust and heat can accelerate wear, so regular cleaning and lubrication are necessary. A well-maintained **5-ton explosion-proof overhead crane** will operate more smoothly and with fewer unexpected issues.

Operator awareness is another key factor. In many facilities in Yemen, proper training helps reduce misuse and extends equipment lifespan. When operators understand how to handle loads correctly, the explosion-proof double girder overhead crane** experiences less stress and performs more reliably.

With consistent maintenance and careful operation, this type of crane can provide long-term value, even in challenging industrial environments.

Get Free Quotation

Please leave us the required Crane specification for Quick Quotation.

Contact
Chat
Whatsapp
Email
720 VR
Send Your Needsx

Please leave us the required Crane specification for Quick Quotation.





Chat on Whatsappx

Whatsapp: +86-15225185279

Top