Carretilla Pórtico para Contenedores

La carretilla pórtico de contenedores multifuncional se compone principalmente de 1 juego de sistema de potencia, 1 juego de sistema de desplazamiento, 1 juego de sistema de elevación hidráulica, 1 juego de sistema de tracción hidráulica, 1 juego de sistema eléctrico, etc. La carretilla pórtico de contenedores tiene las funciones de elevación y descarga, desplazamiento con carga, etc. Puede completar el trabajo de elevación y transferencia de contenedores de forma independiente sin la ayuda de otros equipos. 

  • El peso de las cajas manipuladas por la carretilla pórtico es de 45 toneladas (±2 toneladas).
  • El tipo de cajas manipuladas por la carretilla pórtico de contenedores son contenedores estándar de 20 pies/40 pies y contenedores no estándar.
  • La carretilla pórtico de contenedores puede transportar las cajas al camión de transporte de contenedores y al camión de transporte.
  • El radio de giro del transportador es ≤10m.

Parámetros principales de la carretilla pórtico de contenedores:

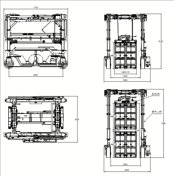
Longitud × anchura × altura 7100 × 5200 × 6100mm (±50mm)
Distancia entre ejes 6000mm
Anchura interior efectiva 3200mm
Distancia máxima al suelo del punto de elevación 6000mm (elevación secundaria 1500mm)
Peso en vacío unas 25 toneladas
Carga rodada 45 toneladas
Velocidad de elevación a plena carga 12mm/s, velocidad de descenso 16mm/s
Velocidad de desplazamiento Carga completa 1,5Km/h; sin carga 7Km/h
Ángulo máximo de subida a pie
Sistema de dirección a las cuatro ruedas Ángulo de marcha múltiple
Mando Mando a distancia
Neumáticos Neumáticos macizos, cuatro ruedas
Material de la estructura Q355 y superior
Seguridad Sistema de alarma de seguridad

Configuración del equipo principal de la carretilla pórtico de contenedores:

Componentes estructurales, sistema de potencia, módulo de control, controlador, pantalla, codificador, sensor de presión, caja de control, bomba hidráulica, motor hidráulico, reductor planetario de llanta, conjunto de válvulas proporcionales de circuito múltiple, válvulas direccionales electromagnéticas, válvula de alivio solenoide, bombas de engranajes de funcionamiento principal.

Dibujo de la carretilla pórtico de contenedores como referencia:

Container straddle carrier drawing

Container straddle carrier
Container straddle carrier
Container straddle carrier
Container straddle carrier

Ventajas de la carretilla pórtico de contenedores:

  • Flexibilidad: La carretilla pórtico de contenedores puede maniobrar fácilmente en espacios reducidos, lo que permite una mejor utilización del espacio de la terminal.
  • Versatilidad: La carretilla pórtico de contenedores puede manejar una amplia gama de tamaños de contenedores, incluyendo contenedores estándar de 20 pies, 40 pies e incluso contenedores especiales.
  • Seguridad: El diseño de la carretilla pórtico permite una manipulación más segura de los contenedores, con características como un centro de gravedad bajo y una estabilidad superior, lo que reduce el riesgo de accidentes o de manipulación incorrecta.
  • Beneficios medioambientales: Muchas carretillas pórtico modernas están diseñadas para ser eficientes energéticamente, y algunas incluso funcionan con energía eléctrica, reduciendo las emisiones y el ruido.
  • Rentabilidad: En comparación con otros equipos de elevación de cargas pesadas, las carretillas pórtico para contenedores pueden ser más rentables para las operaciones a mediana escala en los puertos debido a su adaptabilidad y rápido retorno de la inversión.

Características de la carretillas pórtico de contenedores:

  • Mecanismo de elevación de contenedores: Las carretillas pórtico de contenedores tienen un mecanismo de elevación que les permite recoger contenedores. Están equipados con barras separadoras, que están diseñadas para agarrar los contenedores y levantarlos con alta precisión.
  • Ruedas y chasis de alta resistencia: Las ruedas están diseñadas para manipular cargas pesadas, y el chasis está construido para soportar el esfuerzo de levantar y transportar contenedores.
  • Amplia gama de capacidad de elevación: Las carretillas pórtico para contenedores suelen tener capacidades de elevación que van desde las 40 toneladas hasta más de 100 toneladas, dependiendo del modelo, lo cual es esencial para manipular contenedores de gran tamaño.
  • Dirección a las cuatro ruedas: Muchos modelos de carretillas pórtico para contenedores tienen dirección a las cuatro ruedas, lo que permite una mayor maniobrabilidad y precisión al desplazarse por zonas estrechas o mover contenedores dentro de pilas.
  • Visibilidad: Las carretillas pórtico para contenedores ofrecen una excelente visibilidad para los operadores, normalmente con una cabina situada por encima del chasis para ofrecer una mejor visión del contenedor y de las zonas circundantes.
  • Diseño ergonómico de la cabina: La cabina suele estar diseñada para la comodidad y eficiencia del operador, con controles sencillos y gran visibilidad, lo que mejora la seguridad operativa.
  • Opciones de potencia: Muchas carretillas pórtico de contenedores modernas vienen con cadenas cinemáticas híbridas o totalmente eléctricas, lo que contribuye al ahorro de energía y a la reducción del impacto medioambiental.

Aplicaciones de la carretilla pórtico de contenedores:

  • Operaciones en puertos y terminales: Las carretillas pórtico se utilizan principalmente en terminales de contenedores para cargar, descargar y transportar contenedores dentro del patio.
  • Transporte intermodal: Las carretillas pórtico de contenedores también se utilizan para trasladar contenedores de los buques al transporte ferroviario o a camiones, desempeñando así un papel clave en la logística del transporte intermodal.
  • Manipulación de contenedores a granel: Las carretillas pórtico son esenciales para manipular grandes volúmenes de contenedores a la vez, especialmente para operaciones de manipulación de carga a granel en terminales marítimas.
  • Logística y distribución: En los centros logísticos, las carretillas pórtico ayudan a trasladar rápidamente los contenedores desde los buques de entrada o salida a las zonas de almacenamiento para su posterior procesamiento.
  • Gestión de almacenamiento: En los almacenes de contenedores, las carretillas pórtico ayudan a colocar los contenedores en posiciones específicas, optimizando el espacio y minimizando el tiempo necesario para su recuperación.
  • Transporte de cargas pesadas: Gracias a su gran capacidad de elevación, las carretillas pórtico pueden utilizarse en sectores que requieren el transporte de cargas pesadas y sobredimensionadas, especialmente en la manipulación de mercancías en contenedores.
There is no new information in this column yet

    Obtenga cotización gratis

    Por favor, proporciónenos las especificaciones necesarias de la grúa para una cotización rápida.

    Contacto
    Chat
    Whatsapp
    Email
    720 VR
    Envíe sus necesidadesx

    Por favor, proporciónenos las especificaciones necesarias de la grúa para una cotización rápida.





    Chat on Whatsappx

    Whatsapp: +86-15225185279

    Top