Precio de Grúa Pluma Giratoria Móvil con Polipasto Eléctrico de Cadena de 500 kg, 2.5M y H-3M Venta a México
Precio de Grúa Pluma Giratoria Móvil con Polipasto Eléctrico de Cadena de 500 kg a México
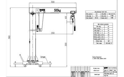
Capacidad: 500kg
Altura de elevación: 3m
Radio de validez: 2.5m
Control: Control colgante
Velocidad de elevación: 6,8m/min
Velocidad de desplazamiento del polipasto: 11m/min
Ángulo de rotación: 360°







