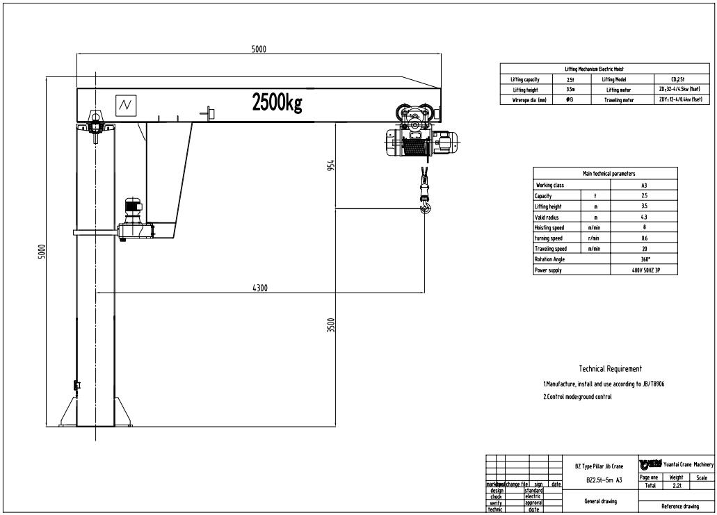
Capacidad de levantamiento: 2.5 ton
Lapso: 5 m
Altura de elevación: 5 m
Clase obrera: A3
Note: Podemos diseñar y fabricar la grúa según sus requisitos y condiciones de trabajo.
Nuestro cliente, una empresa registrada en Uruguay, está incorporada como proveedor de ingeniería, industrial y seguridad general. Nuestros clientes incluyen a Port Services Limited, empresas mineras, así como el sector de energía y petróleo y gas.
Está buscando una grúa pluma de 2.5 toneladas con las siguientes especificaciones: Longitud del brazo: 5 metros, Altura: 5 metros.
Nos complace anunciar que después de varios intercambios de correos electrónicos y negociaciones con nuestro cliente en Uruguay, han expresado su confianza y satisfacción en nuestra profesionalidad y servicio. Nos enorgullece haberles proporcionado una solución de grúa pluma montada en pilar de 2.5 toneladas que cumplió con sus necesidades y requisitos, y agradecemos la oportunidad de trabajar con un cliente tan valioso en Uruguay. Creemos que nuestro compromiso con ofrecer productos y servicios de alta calidad se ha reflejado en esta exitosa colaboración, y esperamos seguir satisfaciendo las necesidades de los clientes en Uruguay en el futuro.
La grúa pluma de 2.5 toneladas para estación de trabajo es una estructura compuesta por un marco de soporte de columna y un brazo de pluma, que se utiliza para levantar y manipular objetos. El brazo de pluma puede girar horizontalmente, permitiendo que la grúa levante y mueva objetos sobre un rango relativamente grande.

Al considerar los factores anteriores, puede elegir la grúa pluma de 2.5 toneladas más adecuada para sus necesidades. Antes de comprar, puede consultar a profesionales o consultar información relevante del producto y reseñas de usuarios para obtener más información y consejos sobre grúas pluma de 2.5 toneladas.


Por favor, proporciónenos las especificaciones necesarias de la grúa para una cotización rápida.