Puente Grúa Monoviga En general
La nueva grúa elevadora europea está diseñada y fabricada de acuerdo con los estándares de la grúa china de acuerdo con los estándares relevantes de las grúas europeas.
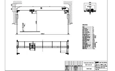
Las grúas están compuestas principalmente por vigas principales, vigas terminales, carros, partes eléctricas y salas de control y otros componentes. La capacidad de elevación estándar son 5 t, 8 t, 10 t, 12,5 t, 16 ty 20 t. También podemos personalizar la capacidad de elevación dependiendo de los requisitos del cliente. La luz es de 7,5 ma 31,5 m. La puente grúa monoviga se usa ampliamente, no solo es extremadamente segura, de buen diseño, ergonómica, el manejo de materiales es conveniente y eficiente, sino que también ahorra espacio en el almacén debido a su estructura de tamaño compacto. Se utiliza para el ensamblaje de fabricación de maquinaria, almacén y otros lugares, para la fabricación de equipos de maquinaria, mantenimiento, almacenes y otros lugares, pero no es adecuado para la autoexplosión y el fuego para hacer un medio de gas corrosivo completo y peligroso y una humedad relativa superior al 85% de el trabajo en el lugar, no apto para transporte de metal colgado.
Puente Grúa Monoviga Estructura metálica
La viga principal es una viga de caja de riel parcial o una viga de acero. La viga del extremo está hecha de acero soldado (tubo rectangular). Entre la viga final y la viga principal con 10,9 grupo de tornillos de alta resistencia en su conjunto.
- Viga de caja para viga de carril parcial o estructura de viga H, la placa de acero formando soldadura
- el material de la placa de acero es Q235-B
- La deflexión vertical es L / 800
- Todo el pretratamiento de granallado de acero, alcanza el estándar de nivel Sa2.5
- Verifique y limpie cuidadosamente antes de soldar el acero, generalmente con la máquina de soldadura automática para soldar (soldadura MIG o semiautomática)
- Toda la soldadura para la detección de fallas no destructivas por rayos X
- Viga de tubo de acero rectangular o formación de soldadura en el procesamiento de la máquina herramienta de control numérico formando a la vez, material de placa de acero Q235-B
- Cada viga final está equipada con llantas dobles de ruedas, topes y dispositivos de protección contra descarrilamiento.
- la plataforma de mantenimiento (pasarela de mantenimiento) de la grúa de doble viga está instalada en el lado de conducción de la grúa en la dirección de la viga principal
- La viga principal y la viga final están conectadas con 10.9 pernos de alta resistencia para garantizar la precisión y el buen funcionamiento de toda la máquina.
Puente Grúa Monoviga Mecanismo de elevación
Polipasto eléctrico europeo SZW. El mecanismo de elevación más avanzado, buen rendimiento sin mantenimiento (consulte el polipasto eléctrico de estilo europeo)
Puente Grúa Monoviga Mecanismo de viaje
El mecanismo de desplazamiento de la grúa adopta una forma de conducción uniforme y se divide en dos soluciones:
- El motor tiene características de arranque suave, si no está conectado con la resistencia de arranque, no es necesario tomar otras medidas técnicas, alimentando directamente, entonces puede alcanzar el efecto de "arranque suave"., El motor en sí con un plano Freno de fricción, la velocidad de frenado es ajustable. hay una mejora muy significativa en el impacto para el arranque y parada de la grúa, el sistema de desaceleración utiliza engranajes de superficie de dientes duros cerrados, procesamiento fino de rectificado, transmisión suave, bajo nivel de ruido, alta capacidad de carga, baja temperatura, larga vida útil.
- Adopte el sistema de conducción tres en uno "(marca: ABM, SEW, SZW), rendimiento superior.
Puente Grúa Monoviga Eléctricos
Fuente de alimentación: línea de contacto deslizante de seguridad
Equipado con función de protección en caso de fase predeterminada
Los movimientos de elevación, carro y grúa se controlan por separado.
Pueden funcionar de forma simultánea o independiente.
Contactor de control de vibraciones dedicado para grúa
Los paneles de control son resistentes a la corrosión, la clase de protección es IP55
Todos los enchufes tienen cabezales de enchufe de alta resistencia, sellado confiable e inserción firme
El diseño de los componentes en la caja de control es razonable, fácil de mantener
Las piezas de conexión del enchufe están protegidas por una carcasa de plástico aislante
Todos los cables están codificados con números, fáciles de identificar
El movimiento del carro es impulsado por un cable plano de PVC aislado que está especialmente diseñado para grúas, y el nivel de tensión puede alcanzar los 450/750 V
El sistema de suministro de energía móvil para carro consta de cable plano, guías galvanizadas y un pequeño aparejo de cables para lograr un deslizamiento suave
Puente Grúa Monoviga Medida de seguridad
La protección contra caídas para el motor eléctrico tres en uno del carro y la grúa evita caídas accidentales
Rain Cover: para el mecanismo de elevación de grúas exteriores, armario eléctrico y mecanismo de conducción
Dispositivo de alarma acústico-óptico
Dispositivo anticolisión inalámbrico
Puente Grúa Monoviga Modo de control
Colgante
Fácil de controlar, no se necesita controlador adicional
Botón de doble bloqueo para lograr una parada de seguridad.
Tipo siguiente o tipo deslizante independiente suspendido debajo del polipasto
Clase de protección IP65
Vida útil: 500.000 veces
Control remoto
Fácil de controlar, no es necesario un controlador adicional, para operar con mayor libertad en el suelo
Decenas de miles de puntos de frecuencia, sin interferencias entre sí
Estación de mando o joystick de dos pasos con parada de emergencia
Clase de protección IP65
Vida útil: 500.000 veces
Tratamiento de pulverización superficial
- La placa de acero se somete a granallado antes de soldar, grado SA2.5
- El espesor total del revestimiento de acero no es inferior a 80 μm (Nota: puede basarse en los requisitos del usuario en su totalidad)
- Las piezas compradas conservan su pintura original cuasi
- Se rocía pintura protectora dentro y fuera del armario eléctrico
- Todas las superficies metálicas están protegidas contra la humedad y la humedad durante el envío.