Grúa Pluma Giratoria Montada en Columna de 2 Toneladas 4 M y H-2.35M con Polipasto Eléctrico de Cable Vendida a México
Grúa Pluma Giratoria Montada en Columna de 2 Toneladas Vendida a México
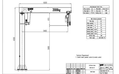
Modelo: Grúa Pluma Giratoria BZ
Capacidad: 2 ton
Envolvente: 4 m
Altura de elevación: 2,35 m
Clase de trabajo: M4
Polipasto: Polipasto eléctrico de cable CD
Velocidad de elevación: 8 m/min
Velocidad de desplazamiento: 20 m/min










