Grúa Pórtico Birriel

Grúa Pórtico Birriel:

  • Capacidad de elevación: 5-500ton
  • Envergadura: 18-35m
  • Altura de elevación: 1-40m
  • Clase de trabajo: A5
  • Temperatura: -25℃~+40℃
  • Fuente de alimentación: 3ph, 380V,50HZ
También podemos diseñar y fabricar productos no estándar de acuerdo a sus necesidades.

Características de la Grúa Pórtico Birriel:

  1. Fuerte capacidad de elevación, gran envergadura, buena estabilidad, variedades
  2. Estructura novedosa, apariencia atractiva, buena usabilidad
  3. Estandarización, universalización y serialización de piezas
  4. Operación flexible, segura y estable

Montaje de la Grúa Pórtico Birriel:

  1. Estructura tipo «A», utilizando pernos de tachuela y pernos de conexión para asentar las partes principales;
  2. Proporciona un espacio máximo entre las patas para asegurar que los objetos puedan ser levantados entre las patas en el extremo en voladizo;
  3. Toda la viga principal de la estructura de caja de riel parcial, la curvatura cumple con el estándar nacional (0.9~1.4)/1000S, la brida y los pernos conectan las vigas principales y las patas;
  4. Patas de la estructura de caja, ambos lados se conectan por separado con las vigas principales y los separadores inferiores.
  5. Materiales Q235B o Q345B (similares a Fe37 o Fe52).

Mecanismo de Traslación de la Grúa Pórtico Birriel:

  1. Accionamiento separado
  2. Accionamiento de trinidad vertical, compacto y seguro;
  3. Llave de ajuste de interferencia enlaza las ruedas y los ejes, caja de rodamiento angular para el grupo de ruedas;
  4. Dos juegos de limitador de terminal de parada y dispositivo antirretorno con amortiguador, para el posicionamiento preciso de la grúa;
  5. Abrazadera de carril equipada y anclaje a prueba de viento y tormentas.

Distribución y Protección de Seguridad de la Grúa Pórtico Birriel:

El sistema de distribución se compone de interruptor principal, contactor de potencia principal y circuitos principales de mecanismos, de modo que el subcircuito fuera de trabajo pueda mantenerse aislado. Hay interruptores de arranque y emergencia, indicadores de potencia, interruptores de seguridad y de límite para la potencia principal, y protecciones contra cortocircuitos, sobrecorriente, sobrecarga y voltaje en el circuito de control de distribución, que se desconectan cuando se interrumpe la alimentación. Protección cero para los mecanismos. Si las manivelas no vuelven a la posición cero cuando se recupera el fallo, no pueden arrancar automáticamente.

1、protección contra sobrecarga y cortocircuito

Interruptor de aire principal en el circuito principal, interruptor de aire pequeño o protección por fusible como protección contra sobrecarga y cortocircuito en el circuito de control. Las funciones de protección de sobrecarga y sobrecorriente están configuradas en todos los armarios de control.

2、protección de posición cero

Cada controlador debe volver a la posición cero, a continuación, reinicie el contactor maestro cuando la grúa de pórtico de inicio o reiniciar el trabajo.

3、protección de límite

  • El interruptor de límite en el mecanismo de elevación rompe el circuito de control cuando el gancho alcanza el límite para garantizar la seguridad.
  • Los interruptores de límite en los mecanismos de desplazamiento del carro y de la grúa de pórtico rompen el circuito de control cuando se desplazan a la posición límite. Sólo puede desplazarse hacia el otro lado.
  • También hay interruptores de límite en la puerta de la cabina y en las barandillas. La alimentación principal puede ponerse en marcha cuando estas puertas están totalmente cerradas.
  • Protección de emergencia, el interruptor de emergencia puede cortar rápidamente la corriente en caso de emergencia.
  • Protección de sobrecarga, el limitador de sobrecarga está situado en el mecanismo de elevación, puede cortar la corriente, emitir una alarma sonora y luminosa y mostrar el número cuando se sobrecarga.

Modo de Control de la Grúa Pórtico Birriel:

  1. Control de cabina, totalmente cerrado, producción de doblado de placas de acero con suficiente resistencia y rigidez, amplia visión;
  2. El diseño de control de enlace podría asegurar que el conductor opere con seguridad y comodidad. Pasillo seguro y conveniente, asiento cómodo. La cabina está equipada con extintor de incendios, pantalla de visualización del limitador de sobrecarga.

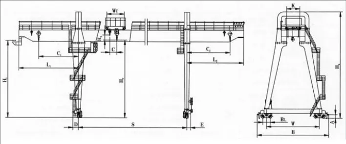
Dibujo de la Grúa Pórtico Birriel:

Drawing of Double Girder Gantry Crane

Precio de la Grúa Pórtico Birriel:

Grúa Pórtico Birriel(t) Precio(USD)
5 Toneladas $5,800 - $72,000
10 Toneladas $6,500 - $79,000
15 Toneladas $7,800 - $86,000
20 Toneladas $8,500 - $95,000
25 Toneladas $9,800 - $110,000
30 Toneladas $10,000 - $120,000
50 Toneladas $15,000 - $130,000

Las Especificaciones de la Grúa Pórtico Birriel son de Referencia:

Grúa pórtico MG de dos vigas con gancho                           5 Toneladas
Envergadura(S) m 18 22 26 30 35
Altura de elevación m 10 10 12 12 12
Velocidad de elevación m/min 12.5
Velocidad del carro m/min 37.2
Velocidad de la grúa m/min 37.7 40.1
Potencia total KW 31.8 31.8 31.8 40.8 40.8
Carga Carga KN 217 230 243 266 289
Carril recomendado   P43
Dimensión principal mm 18 22 26 30 35
Altura total H4 13374 14474 13524 15606 15698
Banda de rodadura de la grúa W 7000 7000 8500 8500 8500
Anchura total B 8554 8554 13050 13050 13050
Voladizo izquierdo L1 6500 6500 6500 9000 9000
Voladizo Derecho L2 6500 6500 6500 9000 9000
Gancho Limitación Izquierda S1 5000 5000 5000 7500 7500
Gancho Limitación Derecha S2 5000 5000 5000 7500 7500
Ancho de vía del carro K 1400
 
Grúa de pórtico MG de dos vigas con gancho                          10t
Envergadura(S) m 18 22 26 30 35
Altura de elevación m 10 10 10 12 12
Velocidad de elevación m/min 8.5
Velocidad del carro m/min 43.8
Velocidad de la grúa m/min 37.7 40.1
Potencia total KW 36.5 36.5 45.5 45.5 45.5
Carga máx. Carga de la rueda KN 225 228 245 290 310
Carril recomendado   P43
Dimensión principal mm 18 22 26 30 35
Altura total H4 14580 14580 14580 16590 16590
Banda de rodadura de la grúa W 8000 8000 8500 9500 9500
Anchura total B 9554 9554 10350 11350 11350
Ménsula izquierda L1 6500 6500 7500 9000 9000
Voladizo Derecho L2 6500 6500 7500 9000 9000
Gancho Limitación Izquierda S1 5000 5000 6000 7500 7500
Gancho Limitación Derecha S2 5000 5000 6000 7500 7500
Ancho de vía del carro K 2000

Proceso de Fabricación de la Grúa Pórtico Birriel:

  1. Tratamiento de superficie: Todos los paneles y perfiles son después de granallado punto a Sa2.5 nivel en GB8923-88, a continuación, después de la erosión por la máquina o la mano para hacer que la superficie de acero obtener St3 nivel, pintura de imprimación con espesor entre 15 ~ 20μm. 3 capas de acabado con espesor ≥120um. Adherencia de la película de pintura de acuerdo con el requisito de calidad de nivel uno de GB9286.
  2. Montaje: La placa de acero después de procesada debe ser montada de acuerdo a la longitud; las soldaduras a tope de la placa de cubierta y el esternón de la viga principal deben ser detectadas por ultrasonido o luz X para cumplir con los requisitos de nivel 1 en JB1152 o nivel 11 en GB3323.
  3. Corte con gas: La placa de cubierta y el esternón de la viga principal utilizan corte automático CNC, los miembros comunes utilizan corte semiautomático, las piezas de tamaño pequeño utilizan corte de copia.
  4. Soldadura: Las soldaduras a tope de la placa de cubierta y el esternón de la viga principal utilizan soldadura de fusión por unión, la línea de soldadura de los cuatro ángulos principales utiliza soldadura automática de alambre con protección de gas C02, la línea de soldadura común utiliza soldadura manual con protección de gas C02.
  5. Piezas de trabajo principales: La rueda utiliza el temple de potencia de frecuencia, la dureza de la banda de rodadura alcanza HB300 ~ 380, a 20 mm de profundidad de la capa de endurecimiento, la dureza no debe ser inferior a 260HB. La rueda de freno utiliza endurecimiento intermedio, a 2-3mm de profundidad de la capa de endurecimiento, la dureza no debe ser inferior a 245-55HRC. El anillo del engranaje del acoplamiento utiliza la conformación del engranaje o el proceso de tallado, luego el endurecimiento de alta frecuencia, su dureza alcanza 33-38HRC.
  6. Ensamblaje: Los ejes de las ruedas se ensamblan con las ruedas mediante prensa de aceite; los ejes y rodamientos se ensamblan después de calentarse mediante AUELY. Todos los mecanismos deben ser operados sin carga después de ensamblados.

Control de Calidad en la Producción de la Grúa Pórtico Birriel:

  1. La construcción mental de la grúa pórtico birriel utiliza el proceso de pretratamiento de acero, las soldaduras a tope de la placa de cubierta y el esternón de la viga principal deben ser detectados por ultrasonidos o luz X.
  2. Las ruedas de la grúa pórtico birriel, el carro y la rueda de freno utilizan un tratamiento térmico de media y alta frecuencia controlado por el durómetro Leeb.
  3. La desviación lateral de las ruedas se controla mediante un comprobador de desviación posterior.
  4. El ruido del movimiento de la máquina se mide con un sonómetro de precisión.
  5. El aislamiento se comprueba con megger, la corriente se comprueba con pinza amperimétrica.
  6. Diversas piezas se comprueban con calibradores de medida, calibradores de enchufe y medidas generales.
  7. El grado de inclinación y la rigidez estática se comprueban mediante teodolito y nivel de equilibrio.
  8. Los medidores especiales de espesor de revestimiento comprueban y controlan la profundidad de las películas de pintura.

Aplicación de la Grúa Pórtico Birriel:

  1. Puertos y terminales: Las grúa pórtico birriel se utilizan principalmente para la carga, descarga y manipulación de contenedores en puertos y terminales. Su gran envergadura y alta capacidad de carga le permiten manipular cargas de gran tamaño de forma eficiente.
  2. Industria manufacturera: Las grúa pórtico birriel se utilizan habitualmente para elevar y mover maquinaria pesada, acero y equipos de gran tamaño.  
  3. Almacenes y centros logísticos: Las grúas pórtico birraíl se utilizan para apilar, clasificar y transportar mercancías. 
  4. Obras de construcción: Las grúa pórtico birriel se utilizan para elevar materiales de construcción como componentes prefabricados, acero y bloques de hormigón.  
  5. Industria energética: Las grúa pórtico birriel se utilizan para instalar y mantener equipos pesados como turbinas, generadores y calderas en la industria energética, especialmente en centrales nucleares, hidroeléctricas y térmicas. 
  6. Construcción de ferrocarriles y puentes: Las grúa pórtico birriel se utilizan para levantar e instalar componentes de puentes, vías de ferrocarril y equipos pesados.  
  7. Industria aeroespacial: Las grúas pórtico birraíl se utilizan para elevar e instalar componentes de aeronaves, cohetes y satélites. Su gran precisión y estabilidad garantizan el transporte y la instalación seguros de componentes críticos.
  8. Construcción naval: Las grúa pórtico birriel se utilizan para elevar e instalar componentes de buques, motores y equipos pesados. 
  9. Automatizadas e inteligentes: Con el desarrollo de la tecnología, las grúa pórtico birriel se automatizan e inteligentizan gradualmente, equipándose con control remoto, posicionamiento automático y sistema de supervisión inteligente.
There is no new information in this column yet

    Obtenga cotización gratis

    Por favor, proporciónenos las especificaciones necesarias de la grúa para una cotización rápida.

    Contacto
    Chat
    Whatsapp
    Email
    720 VR
    Envíe sus necesidadesx

    Por favor, proporciónenos las especificaciones necesarias de la grúa para una cotización rápida.





    Chat on Whatsappx

    Whatsapp: +86-15225185279

    Top