Precio de Grúa Pórtico Móvil Portátil 1 Tonelada 2.7M 3M con Polipasto Manual Ventas a Columbia
Precio de Grúa Pórtico Móvil Portátil 1 Tonelada con Polipasto Manual Ventas a Columbia
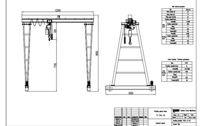
Capacidad: 1 tonelada
Altura de elevación: 3 m
Luz: 2.7m
Control: manual
Polipasto: Polipasto Manual
Diámetro de cadena: 7.1mm
Clase de trabajo: A3









