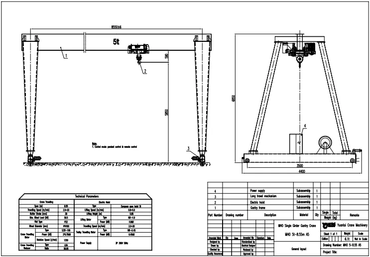
Capacidad de levantamiento: 5 ton
Lapso: 8.55 m
Altura de elevación: 5.85 m
Clase obrera: A5
Note: Podemos diseñar y fabricar la grúa según sus requisitos y condiciones de trabajo.
| Artículo | Grúa pórtico de una sola viga tipo MHO europea | ||
| Capacidad de elevación | t | 5 | |
| Altura total | m | 6,85 | |
| Altura de elevación | 5,85 | ||
| Luce | m | 8,55 | |
| Velocidad | Velocidad de desplazamiento de la grúa | m/min | 2-20 |
| Velocidad de desplazamiento del carro | 2-20 | ||
| Velocidad de elevación | 0.8-5 | ||
| Potencia | Potencia de desplazamiento de la grúa | kw | 0,75*2 |
| Potencia de desplazamiento del carro | 0,45 | ||
| Potencia de elevación | 4,9 | ||
| Potencia total | kw | 6,85 | |
| Fuente de alimentación | V/Hz/Fase | 380 V/50 Hz/3 fases | |
| Carga máxima por rueda | KN | 50,5 | |
| Tipo de carril | / | P22 | |
| Mecanismo de elevación | / | Polipasto eléctrico modelo europeo | |
| Control | / | Control colgante y control remoto | |
| Ciclo de trabajo | / | M5 (FEM 2M) | |
| Clase de protección | / | IP54 | |
| Clase de aislamiento | / | F class | |
| Temperatura de trabajo | / | -10℃ ~ +40℃ | |
| Tipo de gancho | / | Tipo «C» giratorio con pestillo | |
| Material de acero | / | Q235B | |
| País de origen | / | China | |
Hemos completado con éxito una transacción internacional para la exportación a México de una grúa pórtico monorriel de tipo europeo de 5 toneladas. El cliente, una empresa de fabricación de acero con sede en Monterrey (México), necesitaba una solución de elevación de alta precisión para manipular placas de acero y componentes estructurales en su nuevo taller.
Análisis de los requisitos del cliente:
El cliente de México se puso en contacto con nosotros inicialmente a través de nuestra página web oficial después de comparar varios fabricantes de grúas. Necesitaba una grúa pórtico monorriel de tipo europeo de 5 toneladas con una altura de elevación de 5,85 metros y una luz de 8,55 metros para manipular materiales de acero con un peso de hasta 5 toneladas. La grúa estaba destinada a un uso tanto en interiores como en exteriores, siendo el funcionamiento suave y el control preciso las principales prioridades.
Fabricación e inspección de calidad:
Una vez firmado el contrato, se inició inmediatamente la producción. La grúa pórtico monorriel de tipo europeo de 5 toneladas se fabricó con acero de alta calidad y se equipó con un polipasto eléctrico europeo, lo que garantiza una elevación eficiente y un control suave. Antes del envío, todo el sistema de grúas se sometió a una estricta inspección de calidad y a una prueba de carga dinámica para garantizar el cumplimiento de las normas FEM e ISO.
Embalaje y entrega:
Para garantizar un envío internacional seguro, nuestro equipo de logística adoptó un plan de embalaje profesional. La grúa pórtico monorriel de tipo europeo de 5 toneladas se desmontó en vigas principales, patas, vigas extremas y componentes de elevación. La mercancía se envió desde el puerto de Qingdao al puerto de Manzanillo, México, donde el equipo local recibió e instaló el equipo bajo nuestra orientación remota.
Instalación y comentarios del cliente:
La instalación se llevó a cabo sin contratiempos y la grúa pórtico de 5 toneladas estuvo plenamente operativa en dos días. El cliente expresó su satisfacción con el rendimiento y el suave control de movimiento de la grúa pórtico monorriel de tipo europeo de 5 toneladas, destacando su precisión y sus características de seguridad. También apreciaron nuestra rápida asistencia técnica y nuestro servicio posventa.
La grúa pórtico monorriel de tipo europeo de 5 toneladas se utiliza ahora a diario para levantar y mover grandes componentes de acero, lo que ha mejorado significativamente la eficiencia de la producción de la empresa en México.
| Estructura principal | ![]() |
Viga principal | Viga soldada, utiliza principalmente acero estructural al carbono Q235B resistente, fácil de mantener. Pintura de tres capas |
![]() |
Patas | Material de acero estructural al carbono Q235B, diseño de estructura de caja, alta seguridad y rigidez, fácil de mantener Pintura de tres capas | |
| Mecanismo de elevación | ![]() |
Polipasto de altura reducida | Velocidad de desplazamiento y elevación del inversor Reductor, tambor, motores Grado de aislamiento F Clase de protección IP54 |
![]() |
Motor de elevación | Pequeña corriente de arranque, gran par de arranque suave, buen rendimiento de aceleración, larga vida útil, diseño de bajo ruido. | |
![]() |
Motor de desplazamiento | Marca SZW, motor de desplazamiento del polipasto de jaula de ardilla con conversión de frecuencia. Clase de protección IP54 | |
![]() |
Rueda del carro | Engranajes y ruedas de aleación, carga de prueba del 125 % de la capacidad nominal. | |
![]() |
Tambor | Producción propia. Tambores de acero sin soldadura de alta calidad procesados por máquina CNC. | |
![]() |
Cable metálico | Estructura de cable 6×36SW, núcleo de acero. | |
![]() |
Guía de cable | Material de nailon de alta resistencia, instalado en el tambor de bobinado para guiar el cable metálico. Evita el bobinado constante del cable de acero y prolonga la vida útil del tambor. | |
![]() |
Gancho | Tipo giratorio forjado con pestillo de seguridad | |
![]() |
Rodamiento | Marca Luoyang, famosa marca china. Alta precisión de rotación y durabilidad | |
| Mecanismo de desplazamiento de la grúa | ![]() |
Carros finales | Proporciona movimiento horizontal a la grúa, con ruedas de alta calidad, potentes motores 3 en 1, limitador de recorrido y topes. |
![]() |
Ruedas | Instaladas en los carros extremos de la grúa como ruedas motrices, fabricadas en acero con alto contenido en carbono. Fundición al vacío realizada por nuestro grupo, templado intermedio con maquinaria técnica superior, pintura antioxidante. | |
![]() |
Motor de desplazamiento de la grúa | Motor de jaula de ardilla especialmente diseñado para polipastos eléctricos. Sin mantenimiento. Clase de aislamiento F. Clase de protección IP54. Sistema de freno de disco electromagnético | |
| Sistema de protección | ![]() |
Límite de sobrecarga | Muestra el peso de elevación y registra las horas de funcionamiento de la grúa. Registra los tiempos de sobrecarga de la grúa, proporcionando protección y alarmas. Registra los tiempos de arranque del motor de elevación. Proporciona alarmas y protección contra el sobrecalentamiento del motor de elevación. |
![]() |
Interruptores de límite de desplazamiento | Para desplazamientos largos, protege la grúa antes de que colisione con el objeto. | |
![]() |
Limitador de elevación | Para la protección de la elevación, evita que el gancho golpee el polipasto | |
![]() |
Amortiguadores | Se utilizan para evitar colisiones | |
| Componentes eléctricos | ![]() |
Eléctrico Armario | Marca CHINT, la mejor marca china, los contactores principales son DELIXI |
![]() |
Convertidor de frecuencia | Fácil de conectar durante la instalación | |
![]() |
Control colgante | Marca: Inovance, una famosa marca china. Controla el motor de elevación y desplazamiento, cambia la velocidad del motor. | |
![]() |
Control remoto | Control por radiofrecuencia. Seguro y fiable. | |
![]() |
Cable festón | Cable festón C-track para suministrar energía al carro y al polipasto. Seguro, fiable y flexible. |

Próximo: Lo siento no más
Por favor, proporciónenos las especificaciones necesarias de la grúa para una cotización rápida.