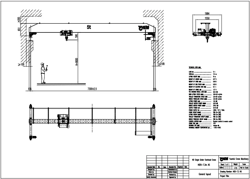
Capacidad de levantamiento: 5 ton
Lapso: 7.3 m
Altura de elevación: 9 m
Clase obrera: M5
Note: Podemos diseñar y fabricar la grúa según sus requisitos y condiciones de trabajo.
| Artículo | Puente Grúa Monorriel |
|---|---|
| Capacidad de elevación | 5 t |
| Altura de elevación | 9 m |
| Luce | 7,3 m |
| Mecanismo de elevación | Polipasto eléctrico de cable |
| Velocidad de desplazamiento del carro | 2~20 m/min (control por inversor) |
| Velocidad de desplazamiento del puente | 2~20 m/min (control por inversor) |
| Velocidad de elevación | 0,8/5,0 m/min |
| Clase de trabajo | FEM 5M |
| Fuente de alimentación | 230V / 3P / 50Hz |
| Potencia de desplazamiento del carro | 0,45 KW |
| Potencia de desplazamiento del puente | 2 × 0,4 KW |
| Potencia de elevación | 4,9 KW |
| Potencia total | 6,15 KW |
| Carga máxima por rueda | 32,5 KN |
| Clase de protección | IP54 |
| Grado de aislamiento | F |
| Temperatura ambiente | -10℃ ~ +40℃ |
| Tipo de gancho | Con pestillo de seguridad con resorte, rotación de 360 ° |
| Material de acero | Q235B |
| Color | Amarillo brillante |
| Certificado | CE e ISO |
| Sistema anticolisión | Incluido |
| Relés de protección de fase | Incluido |
| Interruptor de límite | Incluido |
| Dispositivo de protección contra baja tensión | Incluido |
| Acción de parada de emergencia | Incluido |
| Protección contra fallos de conexión a tierra | Incluido |
| Protección contra cortocircuitos | Incluido |
| Protección contra sobrecalentamiento | Incluido |
| Protección contra corte de energía | Incluido |
| Protección contra sobrecorriente | Incluido |
| Protector contra sobrecargas | Incluido |
| Amortiguador de alta calidad | Incluido |
| Alimentación cruzada | Cables festón |
| Modelo | HD |
| Fabricante | Dongqi Group Henan Yuantai |
| País de origen | China |
Dongqi Crane completó con éxito una transacción con una empresa manufacturera de Colombia que necesitaba equipos de elevación avanzados para su planta de procesamiento de acero. El cliente colombiano buscaba un puente grúa monorriel de 5 toneladas fiable con especificaciones europeas, centrándose en la precisión, la eficiencia y la larga vida útil. Tras varias rondas de conversaciones técnicas, nuestro equipo de ingeniería diseñó una solución personalizada: un puente grúa monorriel de 5 toneladas con una luz de 7,3 metros y una altura de elevación de 9 metros, que cumplía totalmente con las normas FEM 5M.
l cliente colombiano se enfrentaba a retos con su equipo existente, que carecía de control por inversor y provocaba ineficiencias en la manipulación de pesadas placas de acero. El puente grúa de 5 toneladas que le propusimos contaba con un polipasto eléctrico de cable de especificación europea, lo que garantizaba una elevación suave con control de doble velocidad a 0,8/5,0 m/min. Además, tanto la velocidad de desplazamiento del carro como la del puente eran ajustables de 2 a 20 m/min con tecnología inversora, lo que permitía un funcionamiento preciso y seguro. Esta mejora en el rendimiento convenció al cliente colombiano de que el puente grúa monorriel de 5 toneladas era la inversión adecuada para su línea de producción.
El contrato se cerró en un plazo de tres semanas tras confirmar todos los parámetros técnicos. La producción duró 30 días laborables, durante los cuales se realizaron estrictas inspecciones de calidad. Una vez completado, el puente grúa monorriel de 5 toneladas se embaló cuidadosamente y se envió a Colombia a través del puerto de Cartagena. Nuestro equipo de logística garantizó un transporte marítimo seguro y todos los componentes se entregaron según lo previsto.
A su llegada a Colombia, el puente grúa de 5 toneladas se probó con éxito y se puso en funcionamiento, manipulando cargas pesadas con gran precisión. El cliente colombiano informó de importantes mejoras en la productividad, una reducción del tiempo de inactividad y una manipulación más segura de las placas de acero.
| Estructura principal | ![]() |
Viga principal | Viga soldada de sección cuadrada, fabricada principalmente con acero estructural al carbono Q235B, resistente y elegante, fácil de mantener. Pintura de tres capas. |
| Mecanismo de elevación | ![]() |
Polipasto eléctrico | Velocidad de desplazamiento por inversor y doble velocidad de elevación. Reductor, tambor, motores. Grado de aislamiento F. Clase de protección IP54. |
![]() |
Tambor | De fabricación propia. Tambores fabricados en acero sin soldadura de alta calidad procesado con máquina CNC. | |
![]() |
Cable metálico | Estructura del cable 8×26SW, núcleo de acero y galvanizado. | |
![]() |
Guía del cable | Material de nailon de alta resistencia, instalado en el tambor de bobinado para guiar el cable metálico, evitar el bobinado constante del alambre de acero y prolongar la vida útil del tambor. | |
![]() |
Gancho | Tipo forjado giratorio con pestillo de seguridad. | |
![]() |
Rodamiento | Alta precisión de rotación y durabilidad. | |
| Motores | ![]() |
Motor de desplazamiento de la grúa | Motor de jaula de ardilla especialmente diseñado para el polipasto eléctrico. Sin mantenimiento. Grado de aislamiento F. Clase de protección IP54. Sistema de freno electromagnético de disco. |
![]() |
Motor de elevación y desplazamiento del polipasto | Motor tres en uno. Control de conversión de frecuencia, que hace que la elevación sea suave y estable. Tipo totalmente cerrado con lubricación por salpicadura. Sistema de freno electromagnético de disco. Grado de aislamiento F. Clase de protección IP54. | |
![]() |
Carros finales | Estructura de acero hueco cuadrado al carbono Q235B, proporciona desplazamiento horizontal para la grúa con motores y amortiguadores tres en uno. | |
![]() |
Ruedas | Instaladas en los carros finales de la grúa como ruedas motrices, material de acero con alto contenido en carbono. Fundición al vacío realizada por nuestro grupo, temple intermedio con maquinaria de última tecnología y pintura antioxidante | |
| Componentes eléctricos | ![]() |
Armario eléctrico y contactores | Los contactores principales son de las marcas ABB y CHNT |
![]() |
Cable festón | Suministra energía al carro, cable tipo C, seguro y fiable. | |
![]() |
Control colgante | Control colgante de doble velocidad. Seguro y fiable. | |
![]() |
Control remoto | Control inalámbrico por radiofrecuencia | |
![]() |
Sistema de cable deslizante sin juntas | Suministro de energía para la grúa, seguro y fiable | |
![]() |
Convertidor de frecuencia | Marca Inovance, marca china famosa. Controla los motores de desplazamiento, cambia la velocidad del motor. | |
![]() |
Enchufe de aviación | Fácil de conectar durante la instalación | |
| Sistema de protección | ![]() |
Limitador de sobrecarga | Registrador de monitorización automático. Muestra el peso de elevación y registra las horas de funcionamiento de la grúa. Registra los tiempos de sobrecarga de la grúa y proporciona protección y alarmas. Registra los tiempos de arranque del motor de elevación. Proporciona protección y alarmas contra el sobrecalentamiento del motor de elevación. |
![]() |
Amortiguador | Material de poliuretano, utilizado para evitar colisiones |
Maximizar el espacio útil es fundamental en los talleres y almacenes modernos. Un puente grúa monorriel de 5 toneladas está diseñado para proporcionar una elevación eficiente y liberar al mismo tiempo una valiosa superficie útil. A continuación se indican las principales formas en que este equipo ayuda a optimizar el espacio.



Por favor, proporciónenos las especificaciones necesarias de la grúa para una cotización rápida.