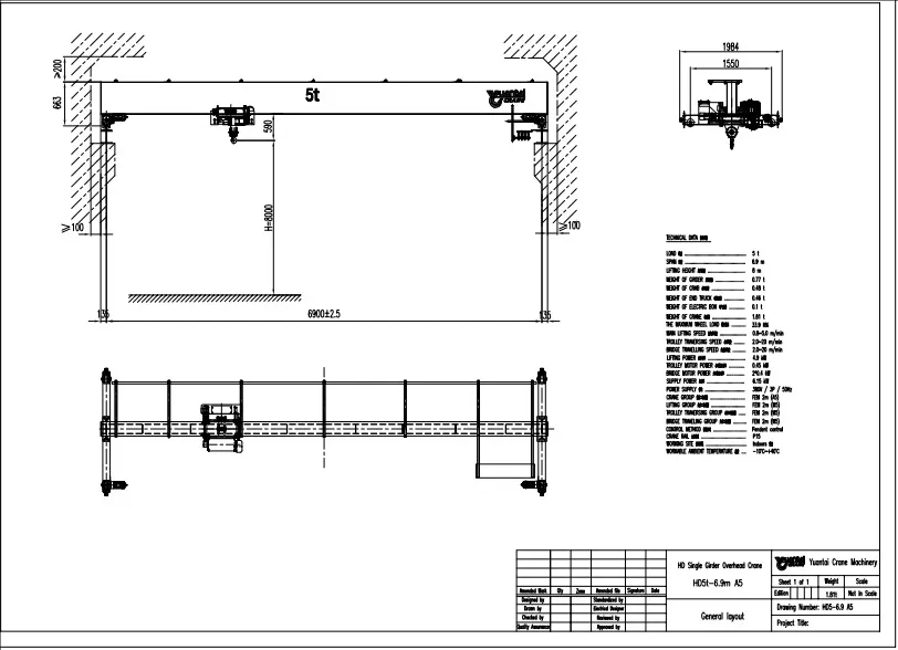
Capacidad de levantamiento: 5 ton
Lapso: 6.9 m
Altura de elevación: 8 m
Clase obrera: A5
Note: Podemos diseñar y fabricar la grúa según sus requisitos y condiciones de trabajo.

| Número | Puente Grúa de tipo Europeo | |
| Capacidad de levantamiento | tn | 5 |
| Altura de elevación | m | 8 |
| Luz | m | 6.9 |
| Velocidad de traslación de polipasto | m/min | 2-20 (Control de conversión de frecuencia) |
| Velocidad de traslación de grúa | 2-20 (Control de conversión de frecuencia) | |
| Velocidad de elevación | 0.8-5.0(Control de conversión de frecuencia) | |
| Clasificación de trabajo | / | FEM 2M (ISO A5) |
| Fuente de alimentación | V/Hz/Fase | 380/50/3 |
| Potencia de traslación de polipasto | KW | 0.45 |
| Potencia de traslación de grúa | 0.4*2 | |
| Potencia de elevación | 4.9 | |
| Potencia total | 6.15 | |
| Carga máxima de la rueda | KN | 33.9 |
| Peso total | tn | 1.81 |
| Clase de protección | / | IP54 |
| Grado de aislamiento | / | F |
| Temperatura ambiente | / | -10℃~+40℃ |
| País de origen | / | China |
| Estructura principal | ![]() |
Viga principal | Viga de sección de caja soldada, utiliza principalmente material Q235B acero estructural al carbono fuerte, fácil de mantener. Pintura de tres capas. |
| Mecanismo de elevación | ![]() |
Polipasto eléctrico (tipo europeo) | Regulación de velocidad de frecuencia variable. Reductores, motores de tambor, motores Nivel de insulto F Clase de protección IP54 |
![]() |
Tambor | Autoproducido. Tambores hechos de acero sin costura de alta calidad procesado por máquina CNC. |
|
![]() |
Cable de alambre | Estructura de cuerda 8 × 26SW, alma de acero. | |
![]() |
Guía de cuerdas | Material de nylon de alta resistencia, instalado en el tambor de bobinado para guiar el cable de alambre, Evite el devanado constante del alambre de acero y prolongue la vida útil del tambor. |
|
![]() |
Gancho | Giro en el cojinete de empuje, pestillo de seguridad. | |
![]() |
Reductor de elevación de polipastos | Accionamiento reductor planetario de precisión en tambor Ligero y compacto. Bien sellado, sin fugas de aceite. |
|
| Motors | ![]() |
Motor de desplazamiento de la grúa | Libre de mantenimiento. Grado de aislamiento F. Clase de protección IP54. Sistema de frenos de tipo disco electromagnético. |
![]() |
Motor de elevación de polipasto | Motor de elevación de conversión de frecuencia. Clase de protección IP54. |
|
![]() |
Carros finales (cabezales) | Estructura de acero hueco cuadrado al carbono Q235B, proporciona un desplazamiento horizontal para la grúa con motores. |
|
![]() |
Ruedas | Instalado en los carros del extremo de la grúa como ruedas motrices, material de acero con alto contenido de carbono. Fundición al vacío por nuestro grupo, Enfriamiento Intermedium por maquinaria de alta técnica pintura antioxidante. |
|
| Electricos | ![]() |
Armario eléctrico y contactores |
Marca CHINT, mejor marca china,
Contactores ABB
Clase de protección IP54 |
![]() |
Cable de festón | Suministro de energía para el carro, pista de cable tipo C, seguro y confiable |
|
![]() |
Control colgante |
Seguro y fiable. | |
![]() |
Convertidor de frecuencia |
Marca Inovance, marca famosa china.
Controle el motor de elevación y
desplazamiento, cambie la velocidad del
motor. |
|
![]() |
Enchufe de aviación | Fácil de conectar al instalar | |
| Sistema de protección | ![]() |
Interruptores de límite de elevación | Para la protección de elevación, evite que el gancho golpee el polipasto |
![]() |
Interruptores de límite de viaje | Para viajes largos, proteja la grúa antes de que choque el objeto | |
![]() |
Registrador de seguimiento automático | Muestra el peso de elevación y registra las horas de funcionamiento de la grúa. Registro de tiempos de sobrecarga de grúas, proporcionando protección y alarmas. Registro de tiempos de arranque del motor de elevación Proporcionar alarmas y protección contra sobrecalentamiento del motor de elevación. |
|
![]() |
Búfer | Material de plouretano, utilizado para anticolisión. |

Por favor, proporciónenos las especificaciones necesarias de la grúa para una cotización rápida.