Capacidad de levantamiento: 5 ton
Lapso: 6 m
Altura de elevación: 4 m
Clase obrera: A5
Note: Podemos diseñar y fabricar la grúa según sus requisitos y condiciones de trabajo.

| Número | Grúa Pórtico de una viga | ||
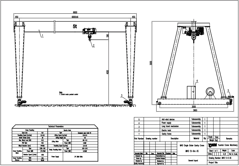
| Capacidad de levantamiento | t | 5 | |
| Altura total de elevación | m | 4 | |
| Luz | 6 | ||
| Velocidad | Velocidad de traslación del trole | m/min | 2.0~20 |
| Velocidad de traslación de grúa | 2.0~20 | ||
| Velocidad de elevación | 0.8~5.0 | ||
| Clase de trabajo | / | FEM 2M (ISO A5) | |
| Fuente de alimentación | V/Hz/Fase | 380V/50HZ/trifásico | |
| Potencia de traslación de grúa | KW | 0.75*2 | |
| Potencia de traslación del trole | 0.45 | ||
| Potencia de elevación | 4.9 | ||
| Potencia total | 6.85 | ||
| Carga máx. de la rueda | KN | 45.2 | |
| Peso total | t | 4.2 | |
| Temperatura ambiente | / | -10℃ ~ +40℃ | |
| País de origen | / | China | |
Dongqi Crane completó con éxito una transacción relacionada con una grúa pórtico de 5 toneladas para un cliente fabricante en Argentina. El cliente, ubicado en Buenos Aires, buscaba una solución de elevación fiable para manipular componentes de acero en un espacio de taller limitado. Tras analizar sus necesidades operativas, le recomendamos una grúa pórtico monorriel de tipo europeo de 5 toneladas, personalizada para adaptarse a sus condiciones de trabajo.
La grúa pórtico de 5 toneladas suministrada a Argentina tenía una capacidad de elevación de 5 t, una altura total de elevación de 4 m y una luz de 6 m. El equipo fue diseñado para tareas de elevación de carga media con una clase de trabajo FEM 2M (ISO A5), lo que garantizaba su durabilidad y eficiencia. La grúa pórtico de 5 toneladas estaba equipada con un control de conversión de frecuencia para un funcionamiento suave y preciso, que ofrecía una velocidad de desplazamiento del carro de 2,0 a 20 m/min, una velocidad de desplazamiento de la grúa de 2,0 a 20 m/min y una velocidad de elevación de 0,8 a 5,0 m/min. Alimentado por una fuente de alimentación trifásica de 380 V/50 Hz, el sistema era totalmente compatible con las normas eléctricas locales de Argentina.
El proceso de compra comenzó cuando el cliente argentino se puso en contacto con nosotros a través de nuestra página web oficial. Destacaron la necesidad de una grúa pórtico de 5 toneladas compacta pero de alto rendimiento para mejorar la eficiencia de la producción. Tras una detallada comunicación técnica, proporcionamos planos de diseño, datos técnicos y propuestas rentables. El cliente argentino apreció la estructura de estilo europeo, que reduce el peso muerto y maximiza el rendimiento de elevación.
Desde su puesta en marcha, la grúa pórtico de 5 toneladas ha estado funcionando a la perfección en el taller del cliente, levantando diariamente pesadas placas de acero y componentes de máquinas. El cliente argentino informó de una mejora en la seguridad, una mayor eficiencia y una reducción de los costes de mano de obra. Expresó su satisfacción con el rendimiento de la grúa pórtico de 5 toneladas, destacando su sistema de desplazamiento estable, su control preciso de elevación y su diseño compacto.
| Estructura principal | ![]() |
Vigas principales | Viga soldada, utiliza principalmente material de acero estructural al carbono Q235B fuerte, fácil de mantener. Pintura de tres capas |
![]() |
Piernas | Material de acero estructural al carbono Q235B, diseño de estructura de caja, alta seguridad y rigidez, fácil de mantener Pintura de tres capas | |
| Mecanismo de polipasto | ![]() |
Polipasto | Velocidad de desplazamiento y de elevación del inversor Reductor, tambor, motores Grado de aislamiento F Clase de protección IP54 |
![]() |
Motor de elevación | Pequeña corriente de arranque, gran par de arranque suave, buen rendimiento de aceleración larga vida útil de diseño bajo nivel de ruido. | |
![]() |
Estructura de polipasto | Estructura principal de acero hueco de alta resistencia, con sistema de desplazamiento. Diseño racional y compacto. Aumenta la altura de elevación del polipasto, aprovecha al máximo el espacio vertical. | |
![]() |
Motor de traslación de polipasto | Marca SZW, Motor de traslación de polipasto de jaula de ardilla y conversión de frecuencia. Clase de protección IP54 | |
| Mecanismo de elevación | ![]() |
Ruedas del carro | Engranaje y ruedas de aleación, carga de prueba del 125% de la capacidad nominal. |
![]() |
Tambor | De producción propia. Tambores de acero sin soldadura de alta calidad procesados por máquina CNC. | |
![]() |
Cable | Estructura de cable 6×36SW, alma de acero. | |
![]() |
Guía de cable | Material de nylon de alta resistencia, instalado en el tambor de enrollado para guiar el cable metálico, Evita el bobinado constante del cable de acero y prolonga la vida útil del tambor | |
![]() |
Gancho | Tipo forjado giratorio con pestillo de seguridad | |
![]() |
Rodamiento | Marca Luoyang, marca famosa china. Alta precisión de rotación y durabilidad | |
| Mecanismo de traslación de grúa | ![]() |
Carros finales | Proporciona desplazamiento horizontal para la grúa, con ruedas de calidad, potentes motores 3 en 1, limitador de desplazamiento y topes. |
![]() |
Ruedas | Instalado en los carros de extremo de la grúa como ruedas motrices, material de acero de alto carbono. Fundición al vacío por nuestro grupo, temple intermedio por maquinaria de técnica superior pintura antioxidante. | |
![]() |
Motor de traslación de grúa | Motor de jaula de ardilla de diseño especial para el polipasto eléctrico. Sin mantenimiento. Grado de aislamiento F. Grado de protección IP54. Sistema de freno electromagnético de disco | |
| Sistema de protección | ![]() |
Registrador de seguimiento automático | Muestra el peso de elevación y registra las horas de funcionamiento de la grúa. Registro de tiempos de sobrecarga de grúas, proporcionando protección y alarmas. Registro de tiempos de arranque del motor de elevación Proporcionar alarmas y protección contra sobrecalentamiento del motor de elevación. |
![]() |
Finales de carrera de traslación | Para traslación largas, proteja la grúa antes de que choque contra el objeto | |
![]() |
Limitador de elevación | Para la protección de la elevación, evite que el gancho golpee el polipasto | |
![]() |
Búferes | Utilizado para anticolisión | |
![]() |
Otra protección | Protección contra corte de fase, protección contra ausencia de tensión, protección contra sobrecorriente | |
| Electrics | ![]() |
Armario eléctrico | Marca CHINT, la mejor marca china, Los principales contactores son DELIXI |
![]() |
Enchufe de aviación | Fácil de conectar al instalar | |
![]() |
Convertidor de frecuencia | Marca Inovance, marca famosa china. Controlar el motor de elevación y desplazamiento, cambiar la velocidad del motor. | |
![]() |
Control colgante | Control por radiofrecuencia Seguro y fiable | |
![]() |
Cable festoon | Cable festón de vía en C para suministrar energía al carro y al polipasto. Seguro, fiable y flexible. |

Por favor, proporciónenos las especificaciones necesarias de la grúa para una cotización rápida.